Exciting QC News – Planning for the Future!

Dear Quimby Family and Friends,
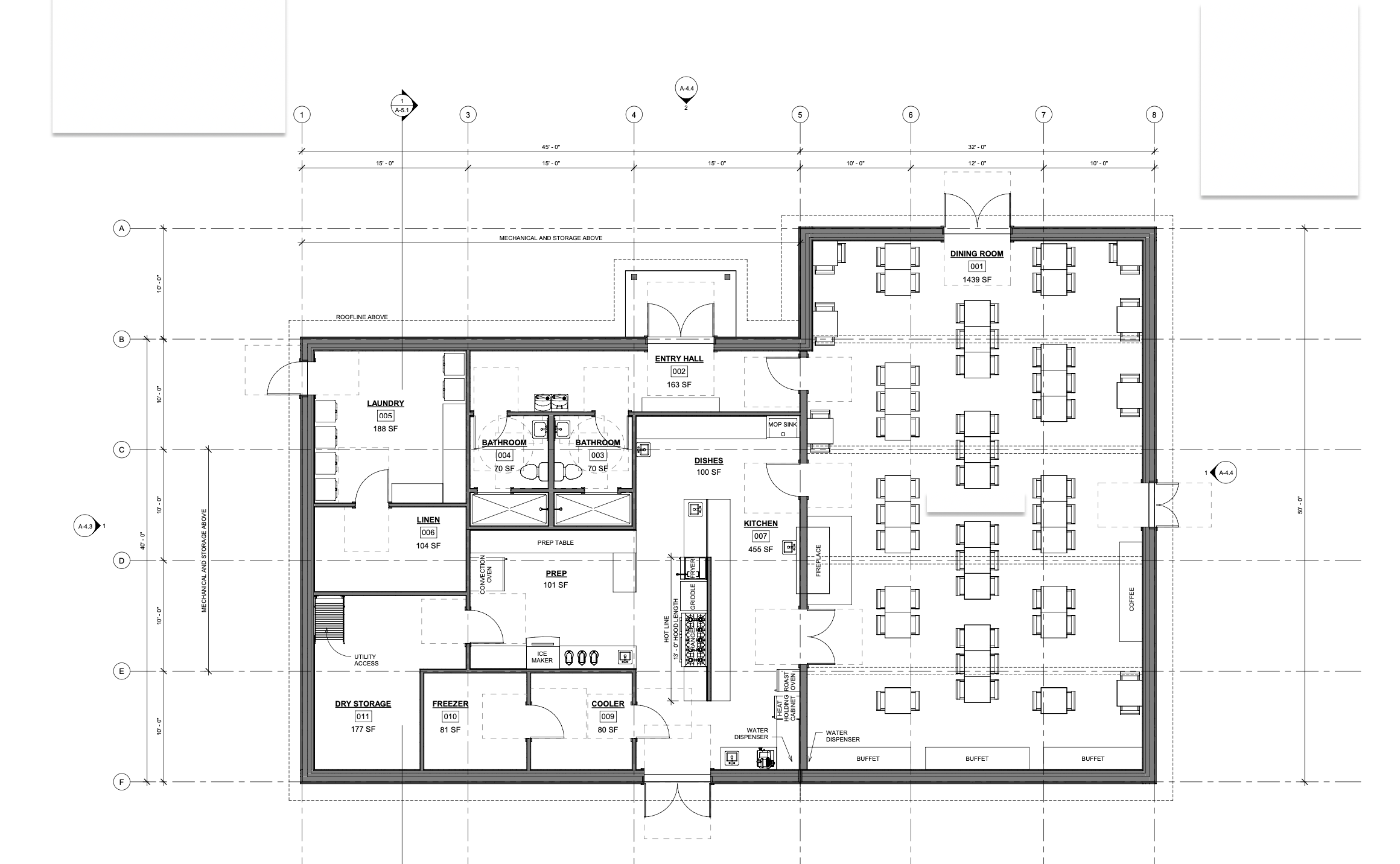
We are thrilled to announce an exciting new chapter in Quimby Country’s story! This fall, in 2026, we anticipate breaking ground on a major building project to enhance your Quimby experience— this facility will include a New Dining Room, Kitchen, and Laundry Facility!
This project has been a dream for quite some time. Our current dining facility, while full of character and history, no longer fully meets the needs of our guests and staff. With this new development, we will create a state-of-the-art dining space paired with a modern kitchen that will elevate our dining experience, ensuring exceptional meals and memories for years to come.
A Thoughtful Design for the Future
Over the past two years, we’ve worked closely with Vermont Integrated Architecture to design a facility that not only meets our needs but also stays true to the charm and history of Quimby Country. After much thoughtful planning, here is the plan:
- A New Facility:
The brown building behind the lodge will be replaced with a brand-new dining room, kitchen, and laundry facility. - Restoring The Lodge’s Historic Footprint:
- We will remove the 1940s south wing addition to The Lodge, including the current kitchen, dish room, and office / lobby.
- This change will restore the lodge to its original historic footprint, preserving the beloved living room, one of the dining room bays (which will become the new office and store space), and continued staff accommodations upstairs.
- A Perfect Balance:
The new dining facility will complement The Lodge beautifully, blending modern convenience with timeless charm. Together, they’ll provide a seamless experience for our guests.
Looking Ahead
We want to keep you informed every step of the way as we embark on this exciting journey. Our 2026 season will be shorter to allow ample time for construction and the unveiling of our new building at the start of the 2027 season. We look forward to resuming our normal operational season in 2027 from May – October.
Honoring Quimby’s Legacy, Building for the Future
This project is about more than a new building—it’s about ensuring that Quimby Country continues to provide the experiences, traditions, and magic that make it so special, while preparing for the future generations of guests and families.
We are so grateful for your ongoing support and enthusiasm. Stay tuned for updates as we move forward.
With warm regards and great excitement,
Lilly and Gene Devlin


